RCYQ系列永磁自卸式除铁器,主要特点:总体尺寸小,可称为轻型带式永磁除铁器。长度高度分别是C型的70%到80%。噪声低并能连续吸铁及弃铁。重量轻平均不到C型的75%,结构紧凑,构建少,便于吊装,便于维修保养,经济实用。适用范围:环保吗、木业、粮食、铸造、化工、建材、矿山、轻工等行业,是除铁作业的好帮手。

一、RCYQ轻型永磁自卸式除铁器结构特点
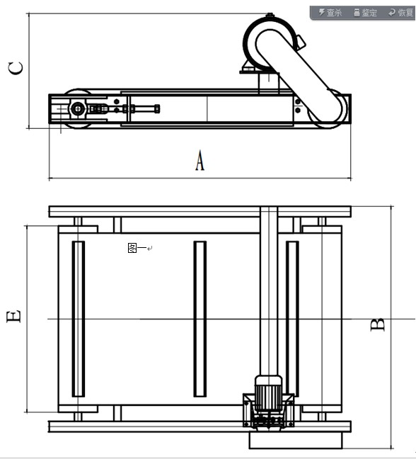
RCYQ系列永磁自卸式除铁器由除铁器本体和卸铁机构两部分组成。除铁器本体磁路设计合理、磁场强度高、磁透深度大,故适合料层较厚的场合除铁。
卸铁机构由机架、摆线针轮减速机(以下简称减速电机)、主从动滚筒。托辊、链轮、链条和装有卸铁刮板的卸铁皮带组成。卸铁皮带的松紧和跑偏的调整可在不?;那榭鱿吕弥岢械鹘谧爸媒小?/span>
二、RCYQ轻型永磁自卸式除铁器主要参数及外型尺寸
